• projeler
  • hakkımızda
  • harita
  • haberler

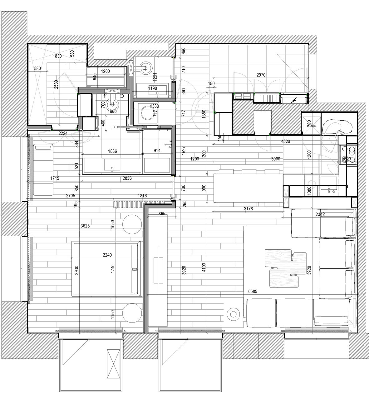
Mythnaya

YIL

2016

KONUM

MOSKOVA / RUSYA

ALAN

90 m2

MÜŞTERİ

-

DURUM

COMPLETED

dekorasyon

Cambridge Soloslovo

2016
eğitim / dekorasyon

AMMA Development

2014
dekorasyon / ofis / yenileme

Sterlyakov Evi

2013
dekorasyon / konut

Skolkovo Park

2014
eğitim / yenileme / dekorasyon

OZSUT CONCEPT

2019
dekorasyon

Copyright 2020 | All rights reserved